Wohnung 8

Diese Wohnung ist bereits vermietet. Steinmarner Straße 46Wohnung 8 – Dachgeschossin 27476 Cuxhaven Wohnfläche gem. WoFlV Wohnen / Küche 28,5 m² Schlafen 9,0 m² Flur 4,6 m² Bad 7,9 m² Hobby 17,0 m² 67,0 m² Gesamtwohnfläche 67,0 m² Sonstiges: zusätzlicher Abstellraum im Kellergeschoss vorhanden PKW Stellplatz auf dem Grundstück
Wohnung 7

Diese Wohnung kann gemietet werden. Steinmarner Straße 46 Wohnung 7 – 2. Obergeschoss in 27476 Cuxhaven Wohnfläche gem. WoFlV Wohnen 21,0 m² Schlafen 15,7 m² Kind 9,2 m² Küche 9,0 m² Flur 9,6 m² Bad 5,5 m² Abstellraum 2,0 m² 72,0 m² Balkon 5,0 m² (25%) Gesamtwohnfläche 73,3 m² Sonstiges: zusätzlicher Abstellraum im Kellergeschoss vorhanden […]
Wohnung 6

Diese Wohnung ist bereits vermietet. Steinmarner Straße 46 Wohnung 6 – 1. Obergeschoss in 27476 Cuxhaven Wohnfläche gem. WoFlV Wohnen 21,0 m² Schlafen 15,7 m² Kind 9,2 m² Küche 9,0 m² Flur 9,6 m² Bad 5,5 m² Abstellraum 2,0 m² 72,0 m² Balkon 5,0 m² (25%) Gesamtwohnfläche 73,3 m² Sonstiges: zusätzlicher Abstellraum im Kellergeschoss vorhanden […]
Wohnung 5

Diese Wohnung ist bereits vermietet. Steinmarner Straße 46Wohnung 5 – Erdgeschossin 27476 Cuxhaven Wohnfläche gem. WoFlV Wohnen 21,5 m² Schlafen 16,0 m² Kind 9,0 m² Küche 9,0 m² Flur 9,8 m² Bad 5,5 m² Abstellraum 2,0 m² 72,8 m² Balkon 5,0 m² (25%) Gesamtwohnfläche 74,1 m² Sonstiges: zusätzlicher Abstellraum im Kellergeschoss vorhanden PKW Stellplatz auf […]
Wohnung 4

Diese Wohnung ist bereits vermietet. Steinmarner Straße 44 Wohnung 4 – Dachgeschoss in 27476 Cuxhaven Wohnfläche gem. WoFlV Wohnen / Küche 26,0 m² Schlafen 10,0 m² Flur 5,4 m² Bad 6,4 m² Hobby 17,0 m² 64,8 m² Gesamtwohnfläche 64,8 m² Sonstiges: zusätzlicher Abstellraum im Kellergeschoss vorhanden PKW Stellplatz auf dem Grundstück
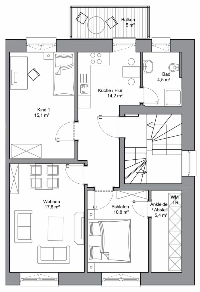
Wohnung 3

Diese Wohnung ist bereits vermietet. Steinmarner Straße 44 Wohnung 3 – 2. Obergeschoss in 27476 Cuxhaven Wohnfläche gem. WoFlV Wohnen 17,6 m² Schlafen 10,8 m² Kind 15,1 m² Küche 14,2 m² Bad 4,5 m² Ankleide / Abstellraum 5,4 m² 67,6 m² Balkon 5,0 m² (25%) Gesamtwohnfläche 68,9 m² Sonstiges: zusätzlicher Abstellraum im Kellergeschoss vorhanden PKW […]
Wohnung 2

Diese Wohnung ist bereits vermietet. Steinmarner Straße 44 Wohnung 2 – 1. Obergeschoss in 27476 Cuxhaven Wohnfläche gem. WoFlV Wohnen 17,6 m² Schlafen 10,8 m² Kind 15,1 m² Küche 14,2 m² Bad 4,5 m² Ankleide / Abstellraum 5,4 m² 67,6 m² Balkon 5,0 m² (25%) Gesamtwohnfläche 68,9 m² Sonstiges: zusätzlicher Abstellraum im Kellergeschoss vorhanden PKW […]
Wohnung 1

Diese Wohnung ist bereits vermietet. Steinmarner Straße 44 Wohnung 1 – Erdgeschoss in 27476 Cuxhaven Wohnfläche gem. WoFlV Wohnen 15,2 m² Schlafen 11,3 m² Kind 18,2 m² Küche 13,8 m² Bad 4,5 m² Ankleide / Abstellraum 5,4 m² 68,4 m² Balkon 5,0 m² (25%) Gesamtwohnfläche 69,7 m² Sonstiges: zusätzlicher Abstellraum im Kellergeschoss vorhanden PKW Stellplatz […]