Steinmarner Straße 46
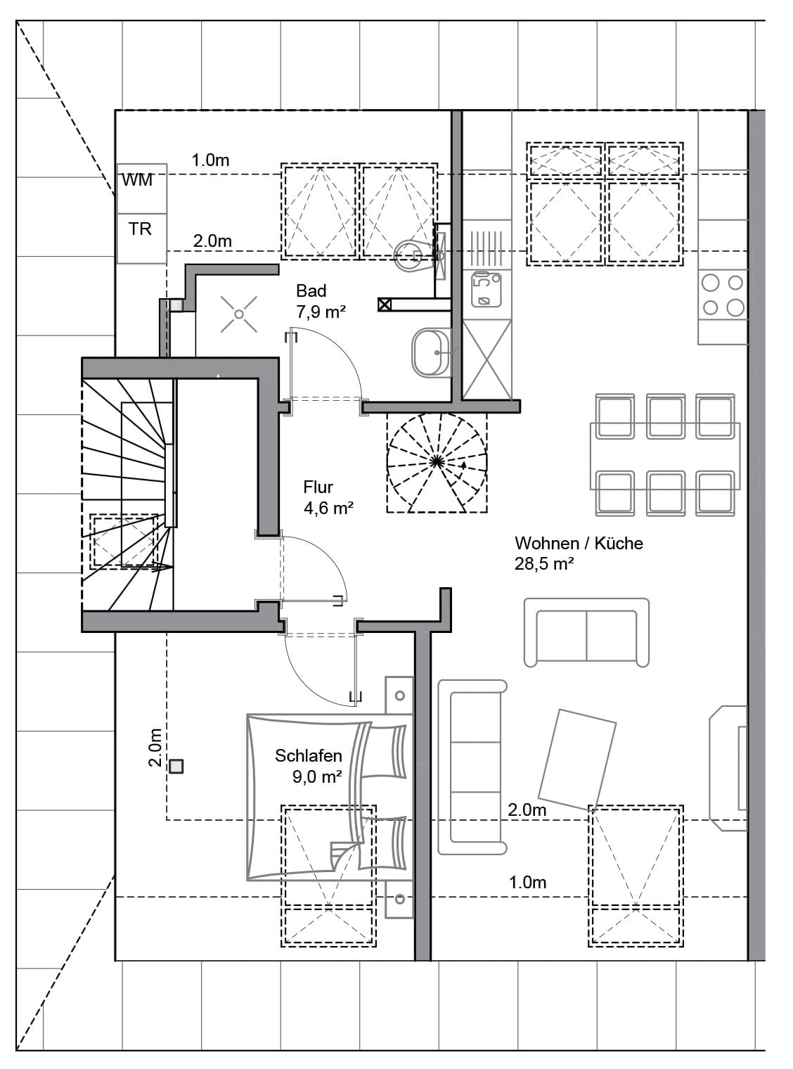
Wohnung 8 – Dachgeschoss
in 27476 Cuxhaven
Wohnung 8 – Dachgeschoss
in 27476 Cuxhaven
Wohnfläche gem. WoFlV
| Wohnen / Küche | 28,5 m² |
| Schlafen | 9,0 m² |
| Flur | 4,6 m² |
| Bad | 7,9 m² |
| Hobby | 17,0 m² |
| 67,0 m² | |
| Gesamtwohnfläche | 67,0 m² |
Sonstiges:
- zusätzlicher Abstellraum im Kellergeschoss vorhanden
- PKW Stellplatz auf dem Grundstück