Steinmarner Straße 44
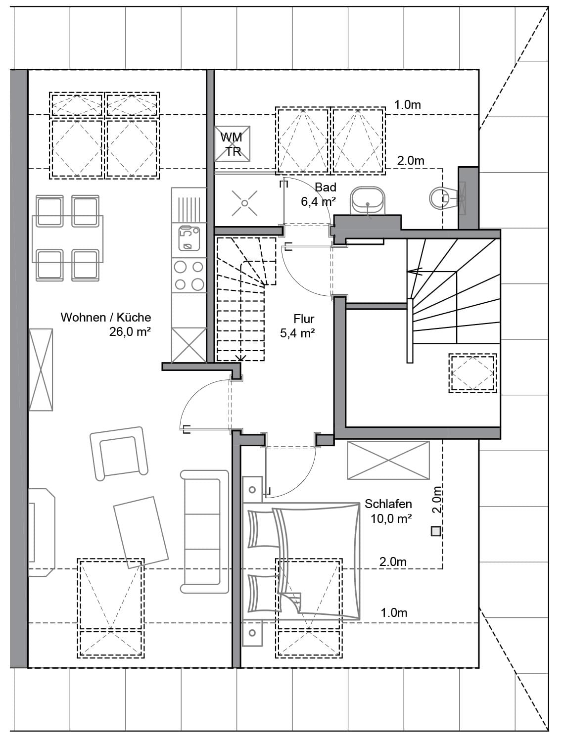
Wohnung 4 – Dachgeschoss
in 27476 Cuxhaven
Sonstiges:
Wohnung 4 – Dachgeschoss
in 27476 Cuxhaven
Wohnfläche gem. WoFlV
| Wohnen / Küche | 26,0 m² |
| Schlafen | 10,0 m² |
| Flur | 5,4 m² |
| Bad | 6,4 m² |
| Hobby | 17,0 m² |
| 64,8 m² | |
| Gesamtwohnfläche | 64,8 m² |
- zusätzlicher Abstellraum im Kellergeschoss vorhanden
- PKW Stellplatz auf dem Grundstück