Steinmarner Straße 44
Wohnung 1 – Erdgeschoss
in 27476 Cuxhaven
Sonstiges:
Wohnung 1 – Erdgeschoss
in 27476 Cuxhaven
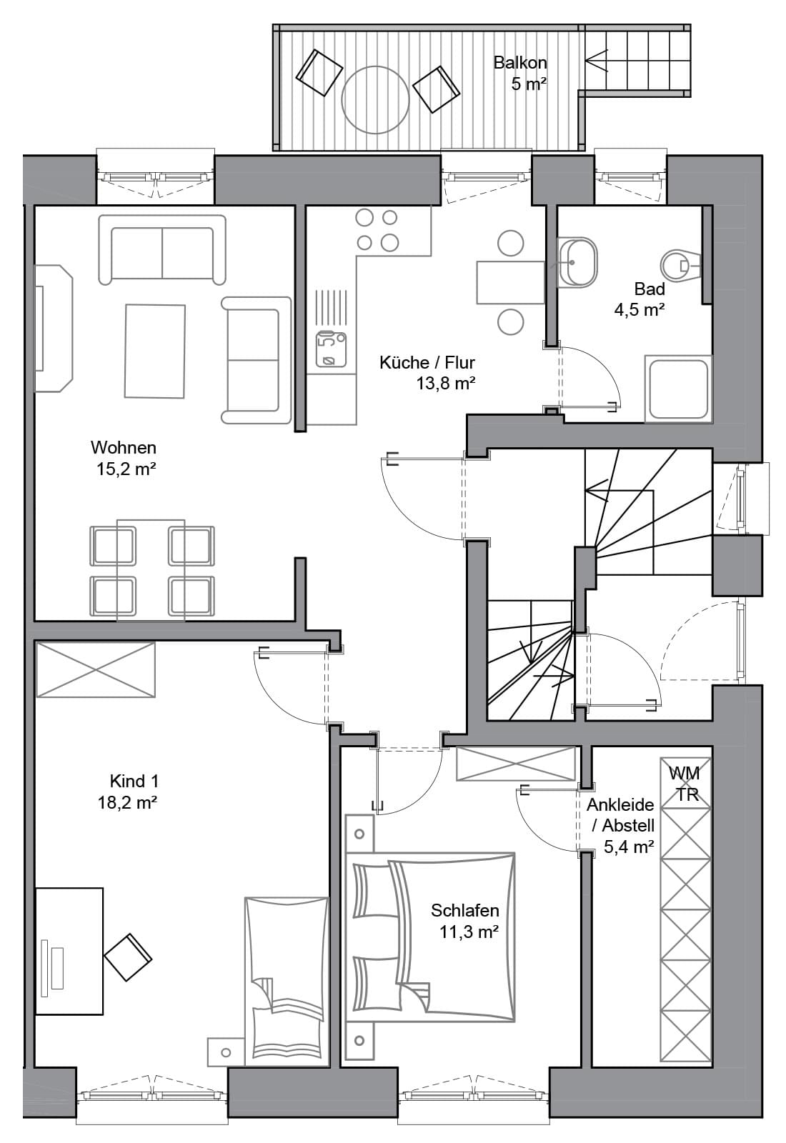
Wohnfläche gem. WoFlV
| Wohnen | 15,2 m² |
| Schlafen | 11,3 m² |
| Kind | 18,2 m² |
| Küche | 13,8 m² |
| Bad | 4,5 m² |
| Ankleide / Abstellraum | 5,4 m² |
| 68,4 m² | |
| Balkon | 5,0 m² (25%) |
| Gesamtwohnfläche | 69,7 m² |
- zusätzlicher Abstellraum im Kellergeschoss vorhanden
- PKW Stellplatz auf dem Grundstück